This Indoor Archery Range provided an opportunity to improve and expand operations of an existing archery range, making archery more accessible to the community year-round.

Through the project, I strengthened my confidence in architectural decision-making, from conceptual choices to refined design. I also developed my technical drawing skills, producing clear and accurate plans, sections, and details that effectively communicated the project’s structural and spatial intentions. Overall, the project helped bridge design thinking with technical execution while reinforcing my ability to justify and stand by my design decisions.

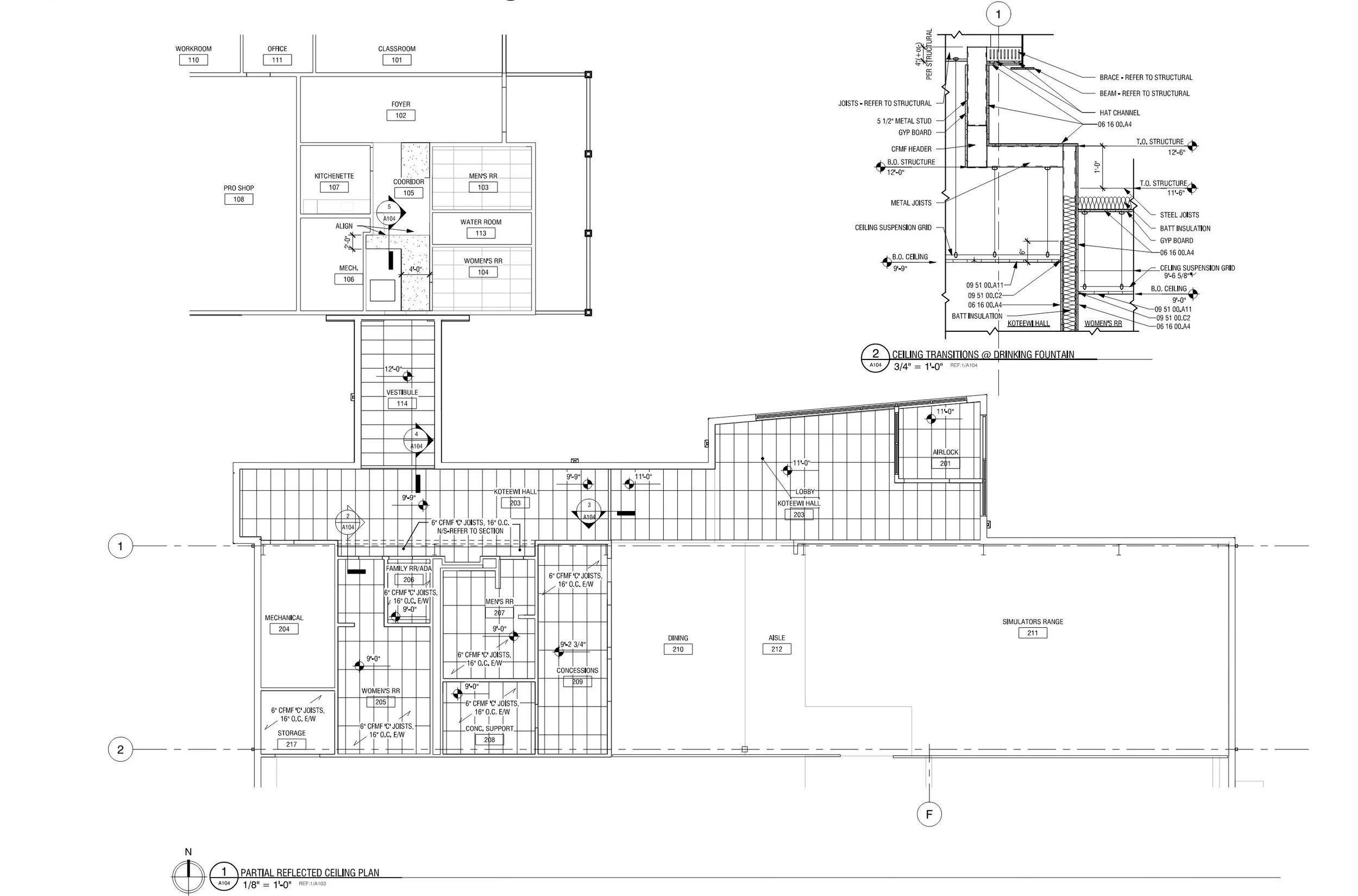
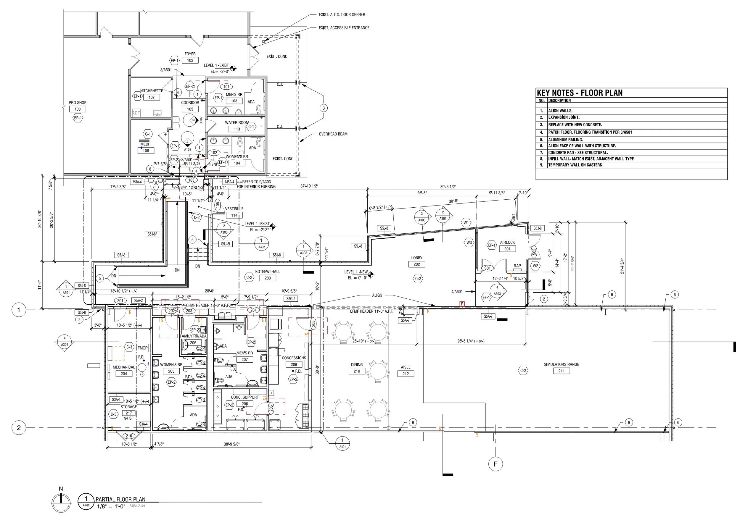
CONSTRUCTION DOCUMENTS SAMPLE:

Previous
Previous

Airport Restrooms

Next
Next

Kairos - Institute of Environmental Justice