Airport Restroom facilities are more than just utilitarian spaces; they are an essential component of the overall travel experience.
This project addressed the often‑overlooked design of airport bathrooms by prioritizing accessibility, circulation, and fixture capacity. Alongside the design team, I analyzed existing plans to locate underused space, then modeled multiple layout prototypes to optimize circulation and amenity placement. Visual interest was introduced through ceiling and finish strategies that guide users while maintaining clarity and comfort. The final design balances efficiency with an improved, welcoming, and durable environment.
DESIGN PROCESS:
RESTROOM PROTOTYPE 1, 2, & 3
RESTROOM PROTOTYPE 1
RESTROOM PROTOTYPE 6
RESTROOM PROTOTYPE 6
RESTROOM PROTOTYPE 7:
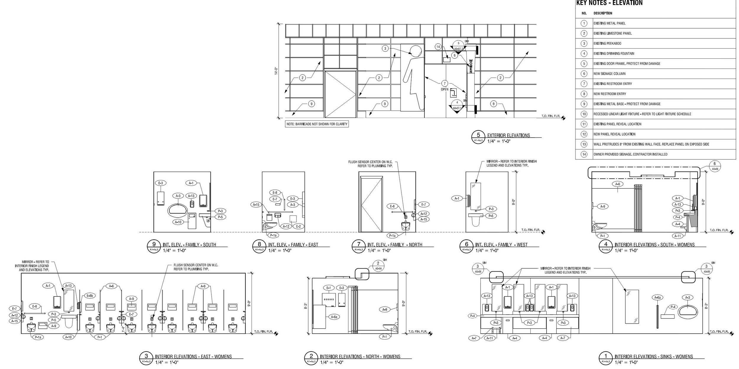
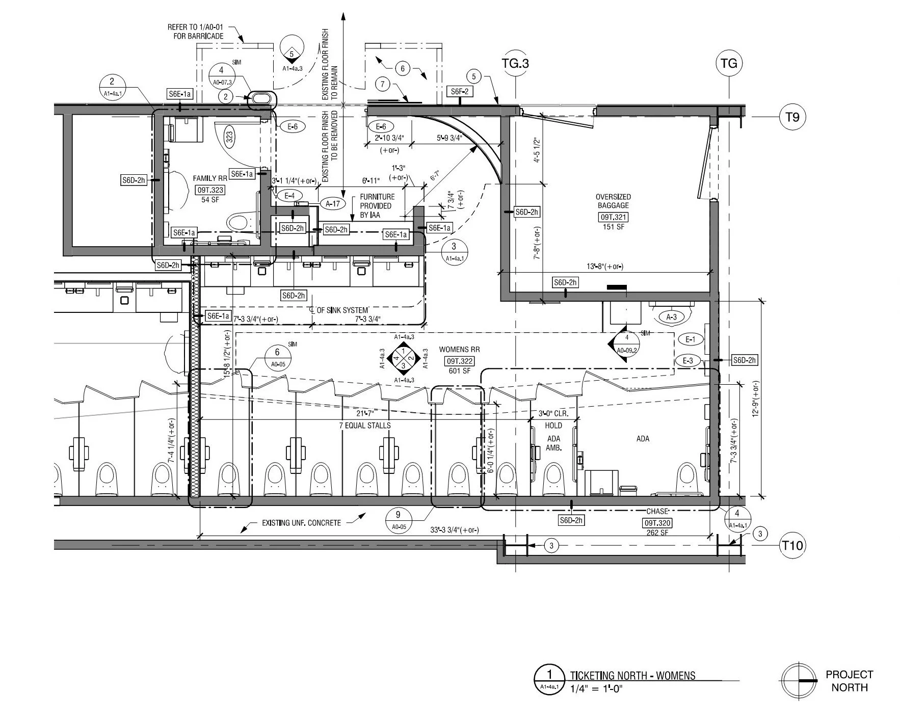
CONSTRUCTION DOCUMENT SAMPLES: